

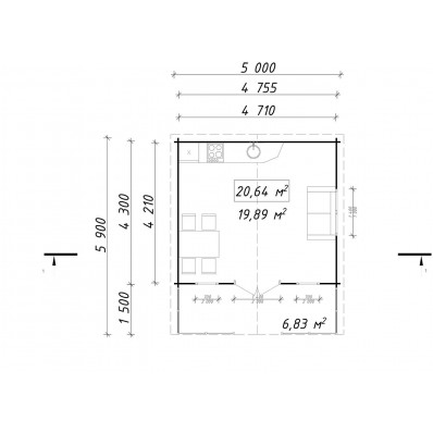
Chalet en bois Toulon 30 m² avec terrasse fermée de 7,5 m² (1,5 x 5 m), en madriers massifs de 45 mm. Grandes ouvertures en double vitrage 4/6/4, lumière naturelle abondante et montage facile. Un chalet idéal pour une petite habitation, une maison à louer ou un bureau de télétravail.
(à modifier dans le module "Réassurance")
(à modifier dans le module "Réassurance")
(à modifier dans le module "Réassurance")
Le chalet en bois Toulon est un logement compact, esthétique et facile à installer, conçu pour répondre à tous vos besoins d’espace supplémentaire. Avec ses 30 m² habitables et sa terrasse fermée de 7,5 m² (dimensions : 1,5 m x 5 m), il s’adapte parfaitement à un usage comme petite habitation, maison à louer ou bureau de télétravail indépendant.
Dimensions extérieures : 4300 x 4755 mm
Terrasse avant fermée : 1,5 m x 5 m (7,5 m²)
Madriers en bois massif de 45 mm : robustesse et isolation naturelle
Ouvertures en double vitrage 4/6/4, assurant luminosité et confort :
1 porte vitrée : 156 x 198 cm
2 fenêtres hautes : 60 x 185 cm
1 grande fenêtre panoramique : 156 x 105 cm
Ce chalet est conçu pour être lumineux, chaleureux et agréable à vivre. La terrasse fermée à l’avant vous permet de créer un espace détente, un jardin d’hiver ou un coin repas abrité.
🛠️ Montage facile, même pour les débutants : le chalet est livré en kit avec un système d’assemblage intuitif et des instructions claires. Aucun outillage spécifique ni compétence technique avancée n’est nécessaire.
✅ Les avantages du chalet Toulon :
Surface totale optimisée : 30 m² intérieurs + terrasse de 7,5 m²
Bois massif 45 mm : solidité et isolation naturelle
Double vitrage : isolation thermique et acoustique
Terrasse fermée : un espace de vie supplémentaire
Montage rapide, sans stress, seul(e) ou à deux
🏡 Une solution idéale pour :
une petite maison secondaire ou principale,
un logement locatif saisonnier,
un bureau calme pour télétravail,
ou un studio indépendant dans votre jardin.