

Le Chalet Grimaud combine design malin et confort avec ses deux niveaux habitables : 19,9 m² au sol + 16 m² de mezzanine. En bois massif avec 6 fenêtres en double vitrage, il est idéal comme petite maison, studio à louer, ou bureau avec couchage.
👉 Sans permis de construire dans la majorité des cas, et facile à monter soi-même !
(à modifier dans le module "Réassurance")
(à modifier dans le module "Réassurance")
(à modifier dans le module "Réassurance")
Le Chalet Grimaud est un logement compact, élégant et facile à installer, qui séduit par sa structure à deux étages. Avec 19,9 m² de surface au sol et une mezzanine de 16 m², il offre un espace optimisé pour créer une petite habitation, une location saisonnière, un bureau de télétravail avec couchage, ou un studio indépendant dans votre jardin.
Et ce n’est pas tout : ce chalet entre dans les dimensions ne nécessitant pas de permis de construire dans la majorité des communes françaises* – un énorme gain de temps et de simplicité administrative pour concrétiser votre projet.
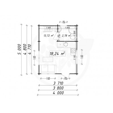
Dimensions extérieures : 500 cm x 400 cm
Dimensions intérieures RDC : 475 cm x 375 cm
Dimensions mezzanine : 475 cm x 375 cm
Surface totale : 35,9 m² (19,9 m² + 16 m² mezzanine)
Épaisseur des madriers : bois massif de qualité (45 mm ou à préciser)
Le chalet dispose de 6 fenêtres en double vitrage 4/6/4, offrant un intérieur baigné de lumière naturelle :
3 grandes fenêtres : 138 x 105 cm
1 fenêtre : 70 x 105 cm
2 petites fenêtres : 50 x 50 cm (idéales pour la mezzanine)
La mezzanine apporte une vraie séparation des espaces, idéale pour créer une chambre ou un coin repos.
🛠️ Montage rapide et accessible
Livré en kit complet avec notice, ce chalet est facile à monter soi-même, même sans expérience. L’emboîtement des madriers assure une structure stable, durable et bien isolée.
✅ Avantages du Chalet Grimaud :
Deux niveaux habitables : 35,9 m² au total
Sans permis de construire* : démarrez votre projet sans tracas
Double vitrage & bois massif : confort thermique toute l’année
Montage simple : rapide et économique
Design moderne et lignes épurées
🏡 Idéal pour :
une petite habitation autonome,
une location meublée ou Airbnb,
un bureau indépendant avec chambre,
un studio pour ado ou parent.
🔑 Bon à savoir
Selon la réglementation française, les constructions de moins de 20 m² au sol peuvent être exemptées de permis de construire, une déclaration préalable suffit dans la plupart des cas. Veuillez vérifier les règles d’urbanisme de votre commune.