

La Maison bois Cannes vous offre près de 49 m² habitables sur 2 niveaux, avec une structure en ossature bois isolée, un style poteaux-poutres moderne, et de grandes baies vitrées. Avec 4 chambres + séjour, c’est une solution parfaite pour une habitation compacte et élégante.
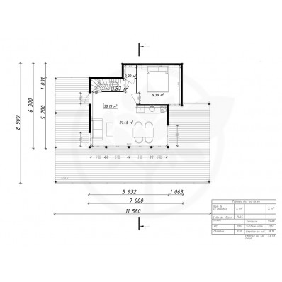
👉 Terrasse de 55 m² disponible en option pour un espace de vie encore plus ouvert.
(à modifier dans le module "Réassurance")
(à modifier dans le module "Réassurance")
(à modifier dans le module "Réassurance")
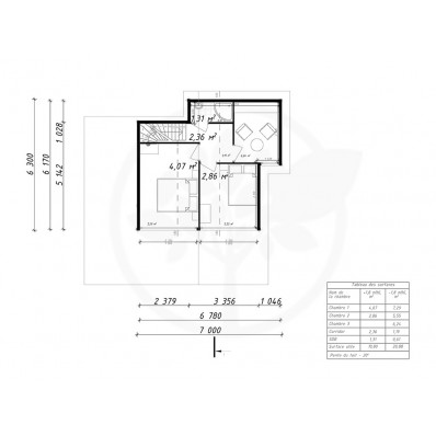
Découvrez la Maison bois Cannes, une habitation contemporaine de 48,93 m² sur deux étages, pensée pour allier design, confort thermique et agencement intelligent. Fabriquée en ossature bois isolée avec un style architectural en poteaux-poutres, cette maison séduit par sa structure légère, stable et performante.
Ses grandes ouvertures vitrées laissent entrer une belle lumière naturelle et offrent un intérieur aéré, chaleureux et moderne. Avec 4 chambres réparties sur deux niveaux et un salon-séjour lumineux, cette maison est une solution idéale pour accueillir toute la famille dans un espace optimisé.
La terrasse de 55 m², disponible en option, permet de prolonger l’espace de vie vers l’extérieur, idéale pour profiter des beaux jours ou créer une zone de détente et de réception.
Surface intérieure : 48,93 m²
2 niveaux habitables
4 chambres + salon-séjour
Structure : ossature bois isolée
Style poteaux-poutres : esthétique moderne et structure robuste
Grandes ouvertures vitrées : lumière et design contemporain
Terrasse 55 m² (en option)
🛠️ Montage et aménagement
Pensée pour un montage structuré, cette maison peut être installée rapidement par des professionnels. Le système poteaux-poutres facilite les aménagements intérieurs et les modifications selon vos besoins. Son ossature bois isolée assure une performance thermique optimale, été comme hiver.
✅ Avantages de la Maison bois Cannes :
Design moderne avec de grands volumes vitrés
4 vraies chambres + séjour dans moins de 50 m²
Isolation performante
Structure durable et écoresponsable
Terrasse en option pour un confort extérieur maximal
Idéale pour un projet d’habitation compacte, de location saisonnière haut de gamme ou de résidence secondaire
🏡 Utilisations idéales :
Maison principale ou résidence secondaire
Location meublée ou Airbnb
Maison pour famille avec enfants
Hébergement sur terrain privé
Bureau d’architecte ou showroom