

Le chalet Béziers 30 m² en bois massif de 45 mm est un espace compact, lumineux et chaleureux, idéal comme petite habitation, maison à louer ou bureau pour le télétravail.
Avec ses larges ouvertures, son confort naturel et son design soigné, ce chalet est facile à monter et s'intègre parfaitement dans tout environnement extérieur.
(à modifier dans le module "Réassurance")
(à modifier dans le module "Réassurance")
(à modifier dans le module "Réassurance")
Le chalet Béziers 30 m² vous offre une solution compacte, élégante et fonctionnelle pour agrandir votre espace de vie ou créer un logement indépendant. Fabriqué en bois massif de 45 mm, il offre une excellente isolation naturelle, un confort thermique été comme hiver, et une ambiance chaleureuse au style intemporel.
Avec sa surface de 30 m², ce chalet est parfait pour un usage en tant que petite résidence secondaire, studio de location saisonnière, bureau de jardin, ou même maison principale compacte. Ses grandes ouvertures vitrées laissent entrer une lumière naturelle généreuse, créant un espace intérieur à la fois lumineux et accueillant.
Le montage est simple et rapide grâce à un système d’assemblage intuitif par emboîtement, même pour les non-professionnels.
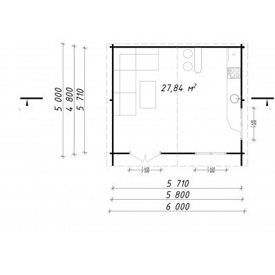
Surface intérieure : 30 m²
Épaisseur des murs : 45 mm en bois massif
Grandes fenêtres pour une belle luminosité
Design sobre et moderne
Montage facile et rapide
Structure robuste et durable
🛠️ Utilisation polyvalente :
Petite maison d’habitation
Bureau pour télétravail
Studio indépendant pour les invités
Logement à louer (Airbnb, location saisonnière)
Salle de loisirs ou d’atelier
✅ Les plus du Chalet Béziers :
Excellente isolation naturelle (bois 45 mm)
Matériau noble et respirant
Grand potentiel d’aménagement intérieur
Solution économique et durable pour créer un espace de vie